4 Bedroom Detached For Sale
Hawthorn Way, Shipston on Stour, CV36 4FD
£588,000
  • NO ONWARD CHAIN
  • 4 Double Bedrooms
  • 2 Bathrooms
  • 3 Reception Rooms
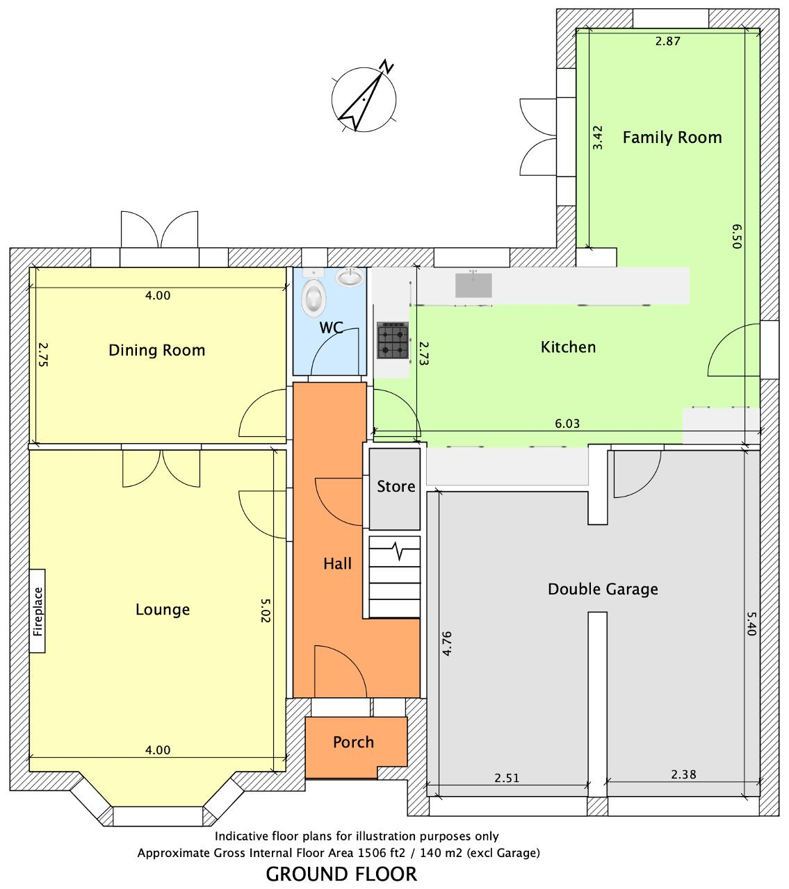
  • Double Garage
  • Driveway Parking
  • Immaculately Presented
  • Mature Rear Garden

Summary

Offered for sale with no onward chain, this impressive four-bedroom detached home is situated in the sought-after market town of Shipston-on-Stour, and benefits from a double garage and generous driveway parking.

The ground floor offers a well-balanced layout, with all rooms accessed from the hallway. The lounge sits to the front, featuring a bay window, while to the rear there is a separate dining room with doors opening out to the garden.
Across the back of the house is a superb kitchen/family room, providing an excellent amount of space for both cooking and everyday living. The kitchen area offers a wide range of units and worktop space, flowing seamlessly into the family area, which in turn has doors opening onto the garden - creating a fantastic, sociable part of the home. A downstairs cloakroom completes the ground floor.

Upstairs, there are four double bedrooms, all with built-in wardrobes. The principal bedroom benefits from its own en-suite, and there is also a family bathroom.

Outside, the rear garden is a particularly attractive feature of the property, offering a pleasant and well-kept space to enjoy, whether for relaxing or entertaining. To the front, there is ample driveway parking leading to the double garage.

A well-presented home in a desirable location, offering plenty of space both inside and out, and available with no onward chain.

Additional Information
We are informed by the vendor that the property is freehold and benefits from mains gas, electricity and drainage. Council Tax Band E with Stratford on Avon District Council.

Additional Information

For further information on this property please call 01789417936 or e-mail [email protected]

EPC Graph

Interested in this property?

01789417936

[email protected]

Request a viewing

Share this property:

Rightmove OnthemarketPRSAir Ambulance BroadbandUK logo