3 Bedroom Terraced For Sale
Evesham Road, Stratford upon Avon, CV37 9AA
£350,000
  • NO ONWARD CHAIN
  • 3 Double Bedrooms
  • 2 Bathrooms
  • Tanked Basement
  • Kitchen/Diner
  • 2 Reception Rooms
  • South-Facing Rear Garden
  • Walking Distance to Town Centre

Summary

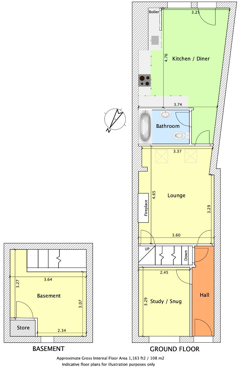
A rare opportunity to acquire a genuinely spacious terraced home, just a short stroll from the heart of Stratford-upon-Avon and offered for sale with no onward chain. The depth of accommodation here is hard to appreciate from the outside, with rooms that continue to unfold as you move through the house, creating a home that feels far larger than expected.

The accommodation begins with an inviting entrance hall, hinting at the generous proportions found throughout. To the left sits a delightful study/snug, a cosy and versatile space perfect for quiet evenings or working from home.

Stairs lead down from the hallway to a fully tanked basement, offering excellent additional space that could be used as an office, den or for practical storage.

The hallway then leads through into a lovely lounge, where skylights at one end subtly draw in extra daylight, adding to the room's welcoming feel. An inner hallway then leads from the lounge to the breakfast kitchen which enjoys a sunny aspect and provides a sociable and well-arranged space, with a charming stable door opening out to the rear garden.

Accessed from the inner hallway is the main bathroom, fitted with a bath with shower over, WC and basin.

From the lounge, a door opens to the staircase rising to the first floor, where two generous double bedrooms can be found, one of which benefits from its own en-suite. A further staircase leads to the loft room, a particularly appealing double bedroom with a dormer window, offering flexibility for a variety of uses.

Outside, the south-facing rear garden is a real feature, enjoying a patio area ideal for seating and a generous lawned section beyond, creating a lovely setting to relax or entertain.

Parking is available via permit on-street parking.

Additional Information
We are informed by the vendor that the property is freehold and benefits from mains gas electricity and drainage. Council Tax Band C with Stratford on Avon District Council. All information should be checked by your solicitor prior to exchange of contracts.

Additional Information

For further information on this property please call 01789417936 or e-mail [email protected]

EPC Graph

Interested in this property?

01789417936

[email protected]

Request a viewing

Share this property:

Rightmove OnthemarketPRSAir Ambulance BroadbandUK logo