5 Bedroom Detached For Sale
Buttercup Way, Stratford upon Avon, CV37 7EQ
£650,000
Sold STC
  • 5 Double Bedrooms
  • 3 Bathrooms
  • Rear Kitchen/Diner
  • 2 Additional Reception Rooms
  • Downstairs WC
  • Cul-de-Sac Location
  • Double Garage
  • Driveway Parking
  • NO ONWARD CHAIN

Summary

Offered for sale with no onward chain, this impressive five bedroom detached home is positioned within a sought-after south of the river cul-de-sac in Stratford-upon-Avon, combining a highly regarded location with generous and well-balanced accommodation.

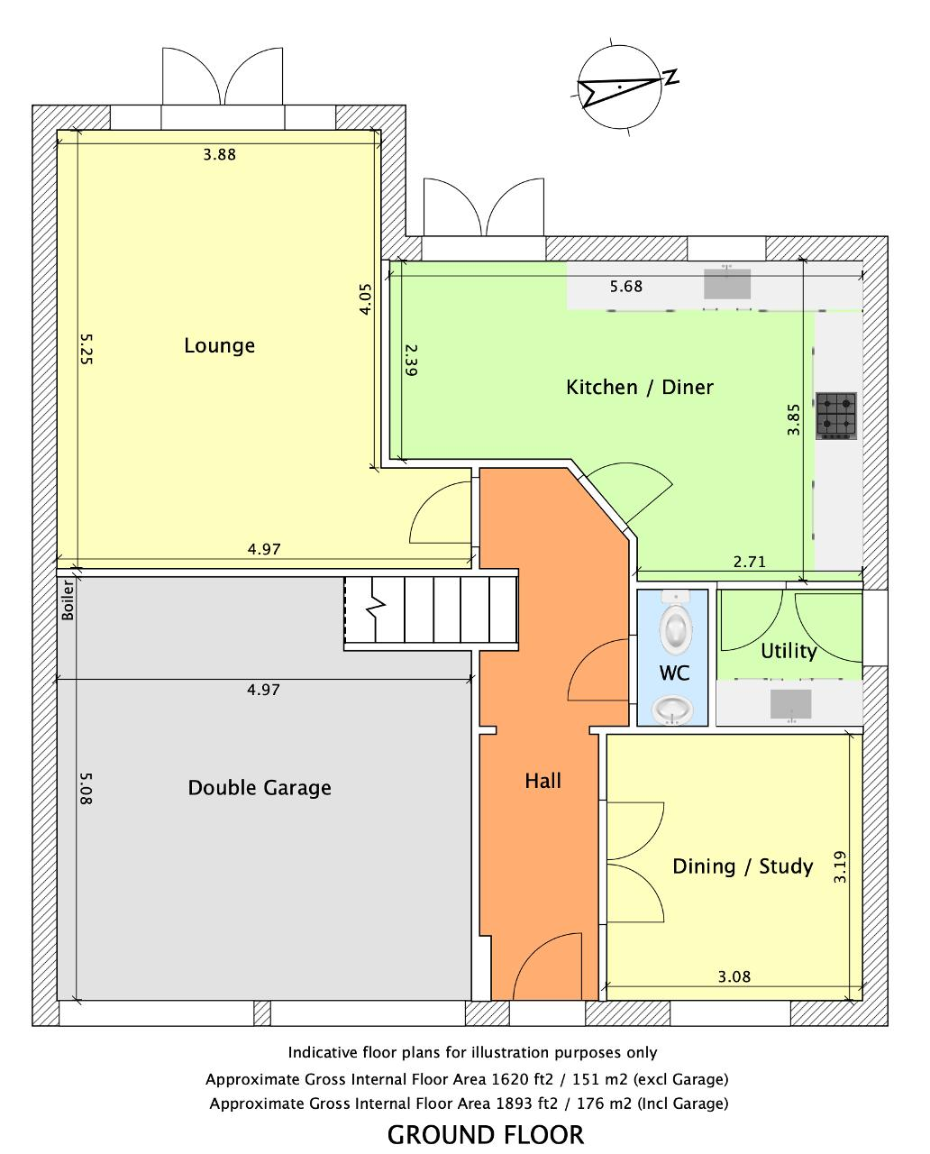
The property is approached via a double driveway leading to a double garage with power and light, providing excellent parking and storage options. A welcoming hallway gives access to a downstairs WC and a front reception room, currently used as a dining room but equally suitable as a study or home office.

To the rear of the property is a kitchen/diner, fitted with a range of units and offering space for a dining table, with French doors opening to the rear garden. A door leads through to a useful utility room, which in turn has an external door providing direct access to the garden. Also positioned at the rear is the lounge, again enjoying French doors to the garden, creating a lovely connection between the living space and the outside.

Upstairs, the property offers five excellent bedrooms. The principal bedroom benefits from built-in wardrobes and an en-suite shower room, while bedroom two also enjoys its own en-suite. Bedrooms three and four are both good doubles, with bedroom five being a smaller double, all served by a family bathroom.

Outside, the rear garden is attractively planted, featuring a variety of shrubs and planting to provide interest and colour throughout the year. There is a patio seating area ideal for entertaining, along with an area of lawn, creating a really enjoyable outdoor space.

A spacious and well-located home in one of Stratford-upon-Avon's most desirable residential areas, offered with the added benefit of no onward chain.

Additional Information
We are informed by the vendor that the property is freehold with an estate management charge of approximately £120 per year. We are advised that all mains services are connected. Council Tax Band G with Stratford on Avon District Council. All information should be checked by your solicitor prior to exchange of contracts.

Additional Information

For further information on this property please call 01789417936 or e-mail [email protected]

EPC Graph

Interested in this property?

01789417936

[email protected]

Request a viewing

Share this property:

Rightmove OnthemarketPRSAir Ambulance BroadbandUK logo